3
76,56
8 398,64
OSTATNI TAKI LOKAL! Nowoczesne 3-pokojowe mieszkanie z dużym balkonem – Stryków, ul. Polna
Zdobądź ostatnie dostępne mieszkanie w tej wyjątkowej, kameralnej inwestycji przy ul. Polnej w Strykowie! To jedyna taka okazja, aby zamieszkać w nowoczesnym budynku o podwyższonym standardzie, w spokojnej i szybko rozwijającej się okolicy
w tej cenie drugi taki lokal się nie trafi.
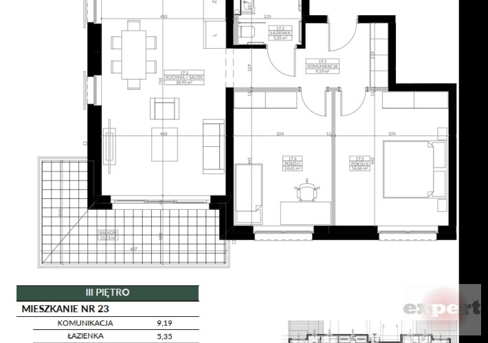
WYJĄTKOWA PRZESTRZEŃ DO ŻYCIA – 76,56 m²
W skład mieszkania wchodzą:
przestronny salon z aneksem kuchennym (30,95 m²) – idealny na rodzinne spotkania i codzienny relaks,
dwa ustawne pokoje (14,41 m² i 16,66 m²) – świetne na sypialnię, pokój dziecka lub domowe biuro,
komfortowa łazienka (5,35 m²),
praktyczny przedpokój (9,19 m²).
Do mieszkania przynależy imponujący balkon 13,13 m² — stwórz tu swoją prywatną strefę wypoczynku!
KOMFORT I NOWOCZESNOŚĆ
Mieszkanie znajduje się na 3 piętrze nowego budynku z windą. Duże okna gwarantują naturalne światło przez cały dzień, a przemyślany układ pomieszczeń zapewnia maksymalną funkcjonalność.
Sprzedawane w stanie deweloperskim, obejmującym m.in. tynki gipsowe, komplet instalacji, ogrzewanie i wentylację — idealna baza do stworzenia wymarzonego wnętrza.
BUDYNEK PREMIUM
Inwestycja wyróżnia się wysokim standardem wykończenia:
elegancka elewacja z jakościowych materiałów,
nowoczesne przeszklenia,
przestronne klatka schodowa,
cicha i komfortowa winda.
Możliwość dokupienia miejsca parkingowego oraz komórki lokatorskiej.
LOKALIZACJA, KTÓRA ZYSKUJE NA WARTOŚCI
Boczna ulica Polna — idealna dla osób ceniących spokój i prywatność.
W pobliżu powstaje nowoczesny kompleks szkolno-sportowy, który znacznie podniesie atrakcyjność okolicy.
W zasięgu kilku minut spaceru:
sklepy, rynek, przystanki autobusowe, lokalne punkty usługowe.
Wszystko, czego potrzebujesz — tuż obok.
NIE PRZEGAP!
To ostatnie mieszkanie w tej inwestycji dostępne w tej cenie. Idealne dla rodzin, par, inwestorów i wszystkich, którzy chcą połączyć komfort, jakość i świetną lokalizację.
Zadzwoń już dziś i umów prezentację – ta oferta może nie być dostępna jutro! ????
Służymy pomocą również w uzyskaniu kredytu.
Rata na to mieszkanie już od 3620,00 zł miesięcznie - (25 lat plus 20% wkładu własnego)
Zapraszamy do zapoznania się z innymi lokalami powstającymi w tej inwestycji oraz indywidualnego kontaktu!
Nota prawna
Opis oferty zawarty na stronie internetowej sporządzany jest na podstawie oględzin nieruchomości oraz informacji uzyskanych od właściciela, może podlegać aktualizacji i nie stanowi oferty określonej w art. 66 i następnych K.C.
Odpłatność. Usługa pośrednictwa w obrocie nieruchomościami jest odpłatna wysokość wynagrodzenia (prowizji) wynosi w przypadku pośrednictwa przy sprzedaży od 3,5 % (umowa na wyłączność) do 4,5% (umowa bez wyłączności) od ceny sprzedaży. W przypadku pośrednictwa przy kupnie - 2,5 % od ceny sprzedaży. Przy pośrednictwie w najmie wynagrodzenie odpowiada jednomiesięcznemu czynszowi najmu. Wynagrodzenie zawiera podatek VAT. Powyższe stawki mogą podlegać negocjacjom (mogą być wyższe lub niższe) .




