Powrót do listy ofert
Pobierz PDF
Dodaj do notatnika

Podobne oferty

TOPH-MS-36 -- || -- KAW-MS-36401 -- || -- EXP-MS-10184 -- || -- LDR-MS-1819 -- || --
PLN
PLN
PLN
PLN
PLN
PLN
PLN
%
PLN
PLN
PLN

PLN

Dane:

PLN
%

Wynik:

PLN
pierwsza rata
ostatnia rata
Łódź, Śródmieście
mieszkanie na sprzedaż
Liczba pokoi
2
m2
41,22
zł/m2
12 299,83
506 999 zł
Opis nieruchomości

"Twoje Wymarzone Mieszkanie" w najmodniejszej części miasta.


Dwupokojowy apartament w nowej inwestycji DYFRAKCJA,
w sercu Nowego Centrum Łodzi, 
w sąsiedztwie Dworca Łódź Fabryczna, doskonała lokalizacja do zamieszkania, jak i inwestycyjnie - "pod wynajem"- zarówno krótko, jak i długoterminowy.

 Sprzedawany lokal w stanie deweloperskim.
Dogodna płatność:
- pierwsza wpłata ok. koniec lutego 2026 r.
- reszta ceny przy pozwoleniu na użytkowanie.




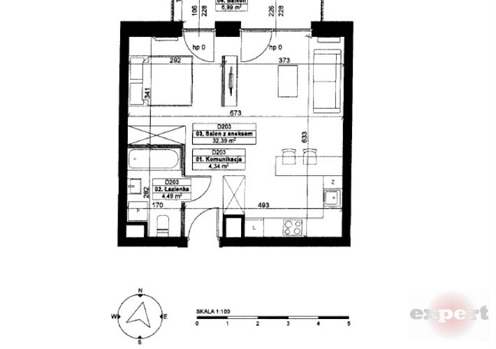
 Bardzo wygodna przestrzeń o pow. 41,22mkw z balkonem o ponadstandardowej powierzchni ok. 7 m2.


Mieszkanie składa się z:

 - SALONU z aneksem kuchennym

 - SYPIALNI
Z obydwu pokoi jest wyjście na balkon.


 - PRZEDPOKOJU -  
4,34mkw

 - ŁAZIENKI z wc -  
4,49mkw.


W lokalu zamontowano okna  nowej generacji, zapewniające doskonałą izolacje akustyczną i cieplną.                    
Do mieszkania przynależy miejsce parkingowe w garażu podziemnym apartamentowca, dodatkowo płatne 60.000 zł.

Planowana data oddania: lipiec 2026 r., lokal sprzedawany jest w stanie developerskim.


NOWOCZESNE UDOGODNIENIA:
  • Rowerownia
  • Wózkownia
  • Stacje ładowania
  • Cichobieżna winda.

NOWOCZESNE ROZWIĄZANIA BUDOWLANE:
  • Wysokiej jakości izolacje akustyczne i termiczne (energooszczędność).
  • Możliwość zainstalowania klimatyzacji.

LOKALIZACJA: ścisłe Centrum
  • 5 min do dworca PKP Łódź Fabryczna w przyszłości połączonego z ogólnopolską siecią CPK
  • 5 min do przystanków tramwajowych i autobusowych  z komunikacją we wszystkie kierunki miasta
  • 17 min do ul. Piotrkowskiej
  • 7 min do Centrum EC1 z Planetarium
  • ok. 700m do Galerii Łódzkiej
  • ok. 800m do MONOPOLIS
  • bliskość do uczelni wyższych, m.in. UŁ, UM i inne, niedaleko osiedle studenckie Lumumby
  • 12 min do do Teatru Wielkiego i Filharmonii Łódzkiej
  • niedaleko Park 3 Maja, park im. Staszica i jedyny łódzki park w stylu francuskim im. Matejki.
Z mieszkania rozpościera się piękny widok na Nowe Centrum Łodzi.


Zachęcamy do zapoznania się z rzutem mieszkania i zaproponowanym wykończeniem łazienki.

 
 
 
 
 

Nota prawna

Opis oferty zawarty na stronie internetowej sporządzany jest na podstawie oględzin nieruchomości oraz informacji uzyskanych od właściciela, może podlegać aktualizacji i nie stanowi oferty określonej w art. 66 i następnych K.C. 

Odpłatność. Usługa pośrednictwa w obrocie nieruchomościami jest odpłatna wysokość wynagrodzenia (prowizji) wynosi w przypadku pośrednictwa przy sprzedaży od 3,5 % (umowa na wyłączność) do 4,5% (umowa bez wyłączności) od ceny sprzedaży. W przypadku pośrednictwa przy kupnie - 2,5 % od ceny sprzedaży. Przy pośrednictwie w najmie wynagrodzenie odpowiada jednomiesięcznemu czynszowi  najmu. Wynagrodzenie zawiera podatek VAT. Powyższe stawki mogą podlegać negocjacjom (mogą być wyższe lub niższe) .   

Podstawowe
Symbol oferty
ABL-MS-7136
Powierzchnia
41,22 m²
Powierzchnia użytkowa
41,22 m²
Liczba pokoi
2
Piętro
5
Szczegóły
Rodzaj budynku
apartamentowiec
Technologia budowlana
cegła nowa
Garaż
garaż podziemny
Stan lokalu
deweloperski
Okna
PCV
Balkon
duży
Liczba balkonów
1
Widok
panorama miasta
Woda
ciepła - miejska
Otoczenie
centrum miasta
Ogrzewanie
C.O. miejskie
Winda
tak
Liczba wind
2
Przystosowania dla niepełnosprawnych
tak
Cena garażu
60000
Manager
Zbigniew Kubiński
Manager
Kontakt z agentem
Proszę wypełnić to pole
Proszę wypełnić to pole
Proszę wypełnić to pole
Trwa wysyłanie...

Ta strona wykorzystuje pliki cookies w celach statystycznych oraz w celu dostosowania naszych serwisów do indywidualnych potrzeb klientów. Zmiany ustawień dotyczących plików cookie można dokonać w dowolnej chwili modyfikując ustawienia przeglądarki. Korzystanie z tej strony bez zmian ustawień dotyczących cookies oznacza, że będą one zapisane w pamięci urządzenia.

rozumiem